Guide Price £750,000 New Instruction
  • Fully Refurbished Five Bedroom Home
  • High Quality Extensions Across Three Floors
  • Modern Open Plan Kitchen Dining Area
  • Skylights And Sliding Garden Doors
  • Three Contemporary Bathroom Suites
  • Spacious Bay Fronted Master Bedroom
  • Loft Conversion With Dual Skylights
  • Private Driveway And Double Garage
  • Landscaped Garden With Patio Area
  • Walking Distance To Central Line Stations

Guide Price - £750,000 - £780,000

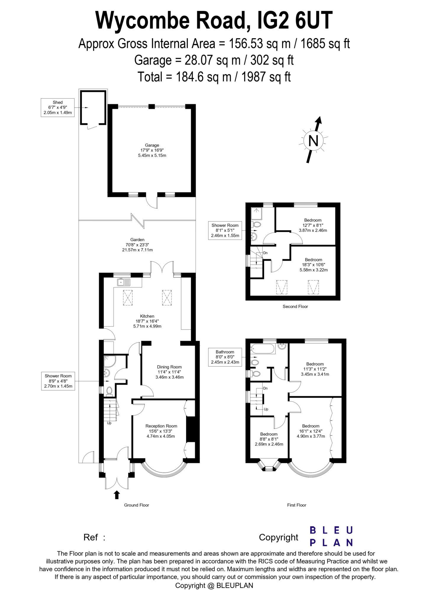
This extensively upgraded five bedroom family home delivers a high spec, future proof living environment across three well planned floors. The property has been refurbished and extended to a premium standard, integrating contemporary finishes, strong natural light flow and a strategically flexible layout suitable for both growing families and long term investors.

The ground floor offers a stand out open plan kitchen/dining zone, designed to drive modern lifestyle efficiency. Skylights and sliding doors maximise natural light, while the fitted units and integrated appliances provide a sharp, streamlined aesthetic. This area connects seamlessly to a well maintained private rear garden, a strong value anchor for entertaining, family use and year round enjoyment.

Across the upper levels, five well sized bedrooms deliver versatility for sleeping accommodation, guest space, or office use. A bay fronted master anchors the first floor, while the loft conversion creates an excellent top floor suite with skylights and impressive headroom. The property includes three contemporary bathrooms, all finished with modern tiling, sleek fixtures and a mix of shower and full bath options.

Externally, the home provides a private driveway, double garage and an established landscaped garden with patio seating a highly sought after combination for this residential pocket. Positioned within walking distance of Gants Hill and Redbridge Underground stations (Central Line), the property offers rapid connectivity to Central London, the West End and key travel links. A strong cluster of reputable schools further reinforces the long term value proposition for families.



Council Tax
London Borough of Newham, Band F

Notice
Lettings
Stonebridge also offer a professional Lettings and Management Service. If you are considering renting your property, to purchase or are looking at buy to let investments or would like a free review of your current portfolio then please call the lettings manager.

Agents Notes
All dimensions are approximate and are quoted for guidance only, their accuracy cannot be confirmed. Reference to appliances and/or services does not imply they are necessarily in working order or fit for the purpose. Buyers are advised to obtain verification from their solicitors as to the Freehold/Leasehold status of the property, the position regarding any fixtures and fittings and where the property has been extended/converted as to Planning Approval and Building regulations compliance. These do not constitute or form part of an offer or contract nor may be regarded as representations. All interested parties must themselves verify their accuracy.


/// strong.hardly.popped is the what3words address for the best entrance. what3words has given every 3 metre square in the world a unique combination of 3 random words.

Floor Plan
EER Chart

The Energy-Efficiency Rating is a measure of a home's overall efficiency. The higher the rating, the more energy-efficient the home is, and the lower the fuel bills are likely to be.

Utility Supply Type
Electric Mains Supply
Gas Mains Supply
Water Mains Supply
Sewerage Mains Supply
Broadband Cable
Telephone Landline

Other Items Description
Heating Not Specified
Garden/Outside Space Yes
Parking No
Garage No

Broadband Coverage Highest Available Download Speed Highest Available Upload Speed
Standard 17 Mbps 1 Mbps
Superfast 80 Mbps 20 Mbps
Ultrafast 1800 Mbps 220 Mbps

Mobile Coverage Indoor Voice Indoor Data Outdoor Voice Outdoor Data
EE Enhanced Enhanced Enhanced Enhanced
Three Enhanced Enhanced Enhanced Enhanced
O2 Enhanced Enhanced Enhanced Enhanced
Vodafone Enhanced Enhanced Enhanced Enhanced

Broadband and Mobile coverage information supplied by Ofcom.


marker icon