Guide Price £2,500 pcm Let
  • Large three bedroom terraced house
  • Off street parking to front
  • Extended open plan kitchen and dining area
  • Bright and spacious lounge
  • Ground floor shower room and first floor family bathroom
  • Top floor principal bedroom with en-suite shower room
  • Private rear garden
  • Excellent access to Barkingside and Newbury Park station
  • Walking distance to Barkingside High Street and local schools

Spacious three bedroom terraced family home with off street parking and extended kitchen



Tenure: Freehold

Beautifully positioned in the heart of Barkingside, this substantial and well-maintained family home offers generous living space across three floors.
Boasting off street parking and a thoughtfully extended kitchen/dining area, the property perfectly balances practicality and comfort for the modern family.

Ideally located within easy reach of both Barkingside and Newbury Park Central Line stations, commuting into central London is seamless.

Barkingside High Street is also just a short distance away, offering a wealth of local shops, cafés, schools, and amenities.



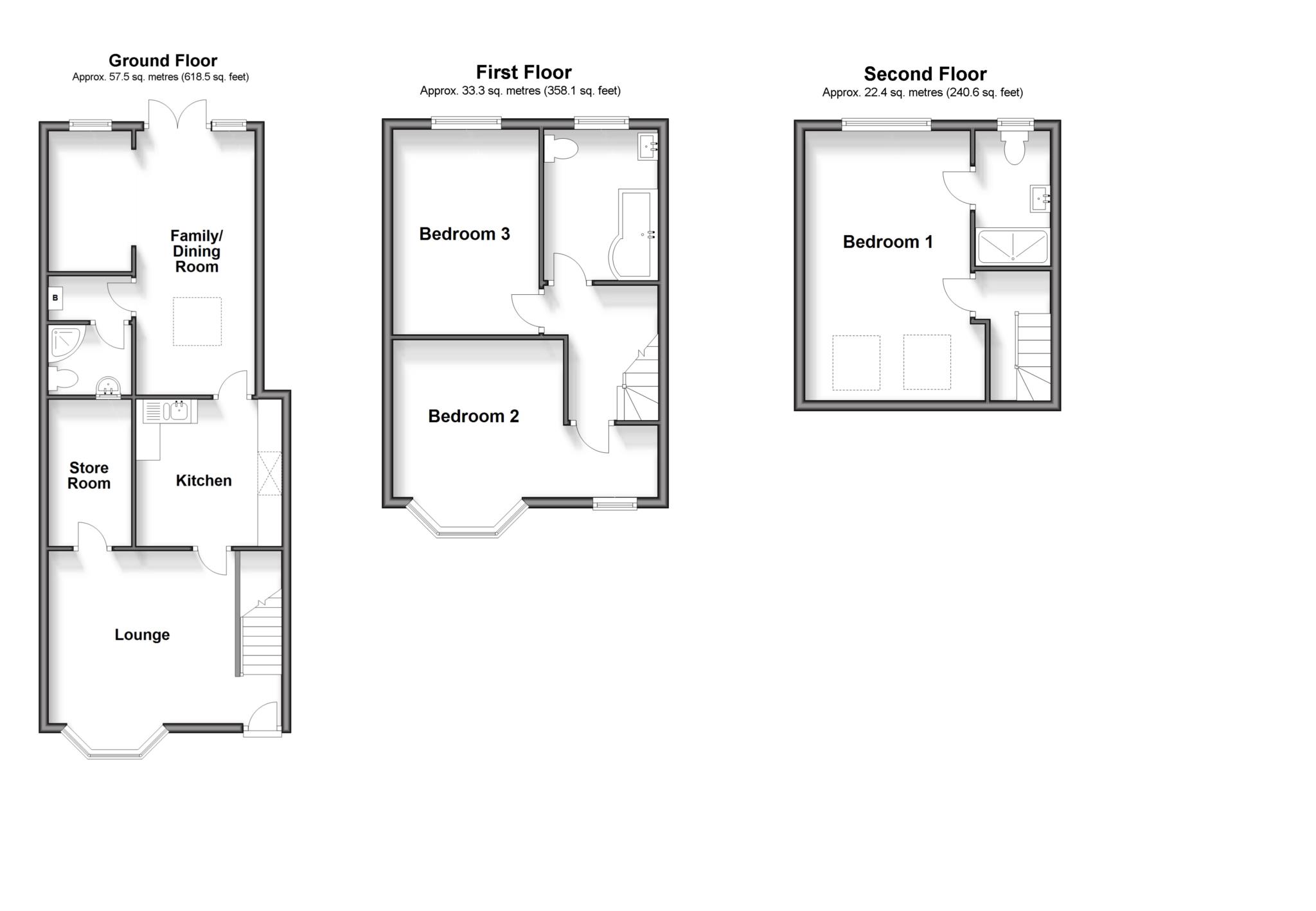
Room dimensions:



Lounge: 13'6 x 13'0 (4.12m x 3.97m)



Kitchen: 10'7 x 9'8 (3.23m x 2.95m)



Family/dining room: 18'7 x 14'1 (5.67m x 4.30m) plus 10'0 x 5'9 (3.05m x 1.75m)



Store room

Ground floor shower room



Bedroom two: 12'8 x 12'0 (3.86m x 3.66m)



Bedroom three: 12'9 x 8'8 (3.89m x 2.64m)



First floor bathroom

Bedroom one (loft conversion): 16'2 x 10'6 (4.93m x 3.20m)



En-suite shower room



A fantastic opportunity to secure a versatile family home in a sought-after Barkingside location.



Deposit: £2,884.00

Minimum Tenancy : 12 months

Council Tax
London Borough of Redbridge, Band D

Notice
All photographs are provided for guidance only.

The following are permitted payments which we may request from you:

a) The rent
b) A refundable tenancy deposit (reserved for any damages or defaults on the part of the tenant) capped at no more than five weeks' rent where the annual rent is less than £50,000, or six weeks' rent where the total annual rent is £50,000 or above
c) A refundable holding deposit (to reserve a property) capped at no more than one week's rent
d) Payments to change the tenancy when requested by the tenant, capped at £50, or reasonable costs incurred if higher
e) Payments associated with early termination of the tenancy, when requested by the tenant
f) Payments in respect of utilities, communication services, TV licence and council tax; and
g) A default fee for late payment of rent and replacement of a lost key/security device, where required under a tenancy agreement

Please call us if you wish to discuss this further.
Floor Plan
EER Chart

The Energy-Efficiency Rating is a measure of a home's overall efficiency. The higher the rating, the more energy-efficient the home is, and the lower the fuel bills are likely to be.

Utility Supply Type
Electric Mains Supply
Gas Mains Supply
Water Mains Supply
Sewerage Mains Supply
Broadband Cable
Telephone Landline

Other Items Description
Heating Not Specified
Garden/Outside Space No
Parking No
Garage No

Broadband Coverage Highest Available Download Speed Highest Available Upload Speed
Standard 9 Mbps 0.9 Mbps
Superfast 77 Mbps 20 Mbps
Ultrafast 1800 Mbps 1000 Mbps

Mobile Coverage Indoor Voice Indoor Data Outdoor Voice Outdoor Data
EE Unknown Unknown Unknown Unknown
Three Unknown Unknown Unknown Unknown
O2 Unknown Unknown Unknown Unknown
Vodafone Unknown Unknown Unknown Unknown

Broadband and Mobile coverage information supplied by Ofcom.


marker icon